Detalji
Vrsta nekretnine:
Stan
Broj soba:
3
Broj kupanica:
1
Broj etaža:
1
Stambena površina:
54,00 m²
Godina izgradnje:
1960.
Kat:
4.
Opis nekretnine
Property Location
Črnomerec, Zagreb, Croatia
OSNOVNE INFORMACIJE
VRSTA NEKRETNINE:
Stan
BROJ SOBA:
3
BROJ KUPAONICA:
1
BROJ ETAŽA:
1
STAMBENA POVRŠINA:
54,00 m²
GODINA IZGRADNJE:
1960.
KAT:
BROJ KATOVA U ZGRADI:
SUSTAV GRIJANJA:
4.
4
Etažno plinsko centralno
ENERGETSKI RAZRED:
NAMJEŠTENOST:
PARKING:
DOZVOLE I POTVRDE:
Uknjiženo
Licencirani posrednik za nekretnne

Gemini Homes
098/904 20 85
01/7817 870
VIDEO LINK
OPIS NEKRETNINE
Na prodaju je novo uređen trosobni stan smješten u mirnoj, slijepoj ulici u neposrednoj blizini okretišta Črnomerec (cca 50 m zračne linije). Stan se nalazi u kvalitetnoj zgradi iz 1960-ih godina, armirano-betonske konstrukcije.
Izvrsna mikrolokacija u tramvajskoj zoni omogućuje brzu povezanost sa svim dijelovima grada, dok sama ulica pruža mir i privatnost.
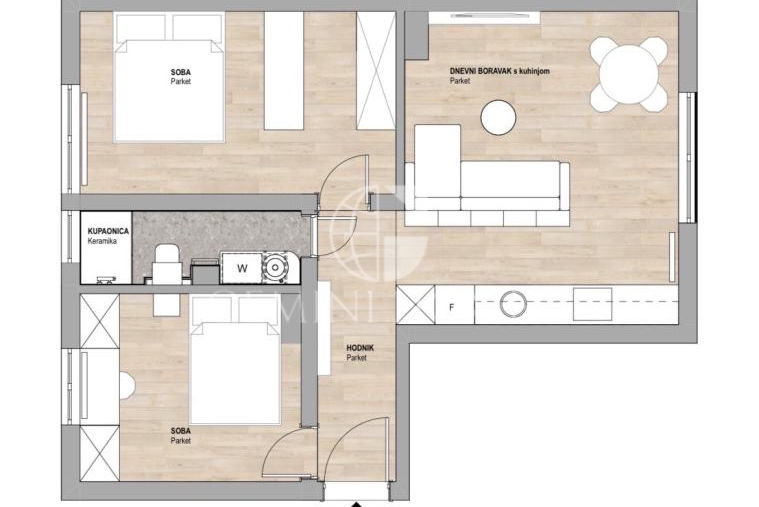
Funkcionalan i maksimalno iskorišten tlocrt
Stan se sastoji od:
dvije komotne spavaće sobe
kupaonice s WC-om
ulaznog hodnika
prostrane dnevne sobe s kuhinjom i blagovaonicom
francuskog balkona s otvorenim pogledom prema jugu
Tlocrt je izuzetno racionalan, bez gubitka prostora, što stan čini idealnim za obitelj, par ili kao dugoročnu investiciju.
Dodatna vrijednost – uređeno spremište 7 m²
Stanu pripada uređeno spremište u suterenu zgrade (cca 7 m²) koje je:
obloženo keramikom
ima PVC prozor
uvedenu struju
Prostor može služiti kao spremište za bicikle i kolica, kućna radionica, ured, mini teretana, pa čak i sauna – ovisno o potrebama budućeg vlasnika.
Kompletna adaptacija 2026. – dizajn i kvaliteta bez kompromisa
Stan je u potpunosti adaptiran 2026. godine prema projektu ovlaštene arhitektice i studija Lebenskunst Studio.
Zamijenjene su sve instalacije:
struje
vode
grijanja
Ugrađena je vrhunska oprema:
kondenzacijski bojler Vaillant
klima uređaj Bosch
podžbukne sanitarije TECE, Armal i Aquaestil
hrastovi parketi
talijanska keramika
kompletna dizajnerska rasvjeta
namještaj izrađen po mjeri
Trenutno je u tijeku završna faza radova, a završetak se očekuje do kraja veljače 2026. godine.
Ova nekretnina predstavlja odličan spoj:
- vrhunske lokacije
- kvalitetne gradnje
- moderne arhitekture i dizajna
- funkcionalnog rasporeda
Kupac ne plaća agencijsku proviziju.
Za više informacija i razgledavanje:
Gsm: +385 98 904 20 85
Tel: +385 1 78 17 870
E-mail: kontakt@gemini-homes.hr
Web: www.gemini-homes.hr
USLUGA KREDITNOG POSREDOVANJA
Gemini Homes nudi besplatnu i neovisnu uslugu kreditnog savjetovanja. Na jednom mjestu
analiziramo ponude više banaka, detaljno ih objašnjavamo i zajedno s Vama pronalazimo najbolje
rješenje. Naš tim stručnjaka prati Vas kroz cijeli postupak – od prvih konzultacija pa sve do
realizacije kredita – kako biste donijeli sigurnu i informiranu odluku te uštedjeli dragocjeno
vrijeme.
LOKACIJA
Črnomerec, Zagreb, Croatia
-

